
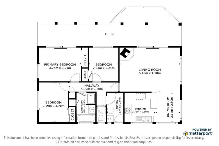
24 Penrod Drive, Bell Block, New Plymouth, 4312 is a Residential property built in 1986 with 3 bedrooms, 1 bathroom and 0 parking spaces. The property is estimated to be valued in the range of $600,000 to $650,000.
The property last sold on 11 April 2024 for $575,000. It was sold by Professionals Real Estate (Beaven Realty Ltd), (Licensed: Reaa 2008), and took 8 days to sell. On 1 August 2025, 24 Penrod Drive, Bell Block, New Plymouth, 4312 had a Rating Valuation with a Capital Value of $580,000, Land Value of $300,000 and Improvement Value of $280,000.
| Date | Type | Price | Agent/Agency |
|---|---|---|---|
| 11 Apr 2024 | SOLD | $575,000 | |
| 4 Apr 2024 | ENQUIRIES OVER | $549,000 | Sam Masters of Professionals Real Estate (Beaven Realty Ltd), (Licensed: Reaa 2008) |
| 11 Mar 2021 | SOLD | $480,000 | |
| 14 Jun 2012 | SOLD | $281,000 | Belinda Clark of Harcourts Taranaki Property Specialists |
| 29 Feb 2012 | ENQUIRIES OVER | $279,000 | Belinda Clark of Harcourts Taranaki Property Specialists |
| 8 Mar 2009 | SOLD | $285,000 | Vickie Dixon of Tsb Realty |
| 28 Feb 2009 | ASKING PRICE | $292,000 | Vickie Dixon of Tsb Realty |
| 15 Aug 2005 | SOLD | $244,000 | |
| 27 May 2004 | SOLD | $198,000 | |
| 4 Jun 1999 | SOLD | $103,000 | |
| 18 Aug 1986 | SOLD | $14,000 |
Lot 66 Deposited Plan 11641
There are no similar properties in the area that are listed for sale or recently sold.