
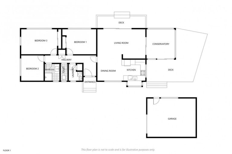
108 Mangati Road, Bell Block, New Plymouth, 4312 is a Residential property built in 1983 with 3 bedrooms, 1 bathroom and 1 parking space. The property is estimated to be valued in the range of $650,000 to $700,000.
The property last sold on 25 May 2022 for $650,000. It was sold by Tall Poppy New Plymouth, and took 8 days to sell. On 1 August 2025, 108 Mangati Road, Bell Block, New Plymouth, 4312 had a Rating Valuation with a Capital Value of $660,000, Land Value of $325,000 and Improvement Value of $335,000.
| Date | Type | Price | Agent/Agency |
|---|---|---|---|
| 25 May 2022 | SOLD | $650,000 | Sam Woods of Tall Poppy New Plymouth |
| 18 May 2022 | ENQUIRIES OVER | $595,000 | Sam Woods of Tall Poppy New Plymouth |
| 16 Feb 2022 | ENQUIRIES OVER | $595,000 | Sam Woods of Tall Poppy New Plymouth |
| 11 Feb 2017 | SOLD | $330,000 | |
| 1 Feb 2017 | ENQUIRIES OVER | $349,000 | Glenn Green of Taranaki Property Specialists Ltd |
| 6 Oct 2004 | SOLD | $188,000 | |
| 2 Jun 1988 | SOLD | $68,500 | |
| 2 Jul 1982 | SOLD | $11,000 |
Lot 5 Deposited Plan 11936
There are no similar properties in the area that are listed for sale or recently sold.