
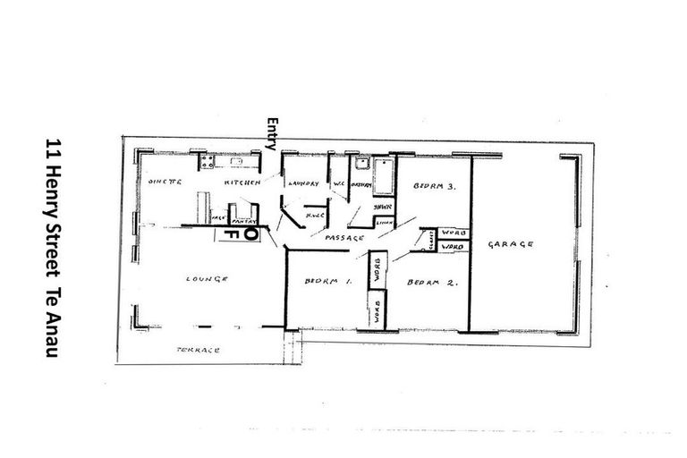
11 Henry Street, Te Anau, 9600 is a Residential property built in 1977 with 3 bedrooms, 2 bathrooms and 1 parking space. The property is estimated to be valued in the range of $700,000 to $750,000.
The property last sold on 23 July 2024 for $620,000. It was sold by Harcourts Gore W Thompson & Co Ltd, (Licensed: Reaa 2008), and took 13 days to sell. On 1 July 2024, 11 Henry Street, Te Anau, 9600 had a Rating Valuation with a Capital Value of $635,000, Land Value of $240,000 and Improvement Value of $395,000.
| Date | Type | Price | Agent/Agency |
|---|---|---|---|
| 23 Jul 2024 | SOLD | $620,000 | |
| 11 Jul 2024 | ASKING PRICE | $640,000 | Shirley Whyte of Harcourts Gore W Thompson & Co Ltd, (Licensed: Reaa 2008) |
| 9 Nov 2021 | SOLD | $499,000 | |
| 2 Dec 2016 | SOLD | $307,000 | Mary Chartres of Ray White Te Anau (Newman Real Estate Limited) |
| 20 Oct 2016 | ASKING PRICE | $315,000 | Mary Chartres of Ray White Te Anau (Newman Real Estate Limited) |
| 29 Aug 2009 | SOLD | $275,000 | Dave Hughes of Harcourts Invercargill |
| 17 Jun 2009 | DEADLINE PRIVATE TREATY | Price Not Disclosed | Dave Hughes of Harcourts Invercargill |
| 6 Nov 2007 | SOLD | $280,000 | |
| 24 Jan 2004 | SOLD | $255,000 | |
| 30 Sep 2003 | SOLD | $220,000 | |
| 26 Feb 2002 | SOLD | $142,500 | |
| 12 May 1990 | SOLD | $90,000 | |
| 18 Feb 1987 | SOLD | $85,000 |
Section 850 Block I Manapouri Survey District
There are no similar properties in the area that are listed for sale or recently sold.