
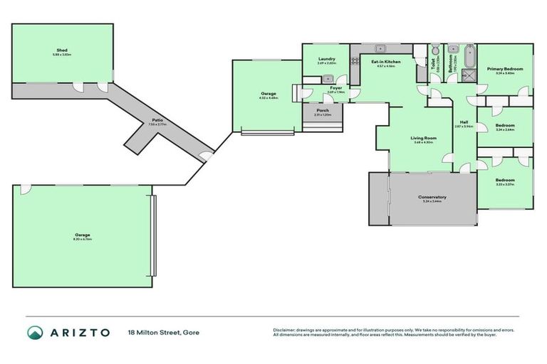
18 Milton Street, Gore, 9710 is a Residential property built in 1951 with 3 bedrooms, 1 bathroom and 1 parking space. The property is estimated to be valued in the range of $450,000 to $500,000.
The property last sold on 12 May 2005 for $146,000. On 1 July 2025, 18 Milton Street, Gore, 9710 had a Rating Valuation with a Capital Value of $435,000, Land Value of $220,000 and Improvement Value of $215,000.
| Date | Type | Price | Agent/Agency |
|---|---|---|---|
| 3 Apr 2025 | ASKING PRICE | $545,000 | Jess Burgess of Arizto Ltd, (Licensed: Reaa 2008) |
| 12 May 2005 | SOLD | $146,000 | |
| 14 Jun 1999 | SOLD | $60,000 | |
| 1 Jan 1930 | SOLD | $0 |
Lot 8 Deposited Plan 4325
There are no similar properties in the area that are listed for sale or recently sold.