
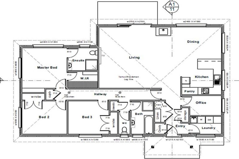
2 Hollys Lane, Weston, Oamaru, 9401 is a Lifestyle property built in 2017 with 3 bedrooms, 2 bathrooms and 2 parking spaces. The property is estimated to be valued in the range of $800,000 to $900,000.
The property last sold on 28 August 2017 for $550,000. It was sold by LJ Hooker Oamaru. On 1 August 2023, 2 Hollys Lane, Weston, Oamaru, 9401 had a Rating Valuation with a Capital Value of $780,000, Land Value of $320,000 and Improvement Value of $460,000.
| Date | Type | Price | Agent/Agency |
|---|---|---|---|
| 28 Aug 2017 | SOLD | $550,000 |
Lot 8 Deposited Plan 501471
There are no similar properties in the area that are listed for sale or recently sold.