
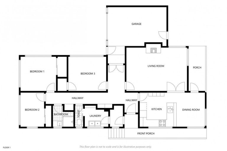
46a Nen Street, Oamaru, 9400 is a Residential property built in 1965 with 3 bedrooms, 2 bathrooms and 1 parking space. The property is estimated to be valued in the range of $450,000 to $500,000.
The property last sold on 10 August 2025 for $485,000. On 1 August 2023, 46a Nen Street, Oamaru, 9400 had a Rating Valuation with a Capital Value of $410,000, Land Value of $165,000 and Improvement Value of $245,000.
| Date | Type | Price | Agent/Agency |
|---|---|---|---|
| 10 Aug 2025 | SOLD | $485,000 | |
| 14 Nov 2024 | ENQUIRIES OVER | $499,000 | Stephen Robertson of LJ Hooker Oamaru, (Licensed: Reaa 2008) |
| 22 Nov 2021 | SOLD | $430,000 | |
| 6 Oct 2006 | SOLD | $159,000 | |
| 11 Jul 2000 | SOLD | $73,000 | |
| 8 Nov 1990 | SOLD | $67,500 |
Lot 2 Deposited Plan 9963
There are no similar properties in the area that are listed for sale or recently sold.