
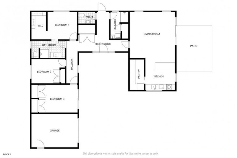
179a Eden Street, Oamaru, 9400 is a Residential property built in 2021 with 3 bedrooms, 2 bathrooms and 1 parking space. The property is estimated to be valued in the range of $800,000 to $900,000.
The property last sold on 22 March 2022 for $840,000. It was sold by Tall Poppy Mackenzie & Waitaki, and took 55 days to sell. On 1 August 2023, 179a Eden Street, Oamaru, 9400 had a Rating Valuation with a Capital Value of $750,000, Land Value of $280,000 and Improvement Value of $470,000.
| Date | Type | Price | Agent/Agency |
|---|---|---|---|
| 22 Mar 2022 | SOLD | $840,000 | Jane Van Schreven Areinz of Tall Poppy Mackenzie & Waitaki |
| 27 Jan 2022 | ENQUIRIES OVER | $825,000 | Pip O'Connell of Tall Poppy Mackenzie & Waitaki |
| 10 Jun 2020 | SOLD | $155,000 | |
| 11 Mar 2019 | ASKING PRICE | $165,000 | Kelli Milmine of One Agency - The Property Specialists, (Licensed: Reaa 2008) |
| 13 May 2016 | SOLD | $145,000 |
Lot 2 Deposited Plan 494431
There are no similar properties in the area that are listed for sale or recently sold.