
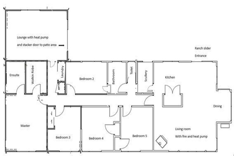
16 Rees Street, Duntroon, Oamaru, 9494 is a Residential property built in 1950 with 4 bedrooms, 2 bathrooms and 1 parking space. The property is estimated to be valued in the range of $550,000 to $600,000.
The property last sold on 25 March 2025 for $560,000. It was sold by LJ Hooker Oamaru, and took 69 days to sell. On 1 August 2023, 16 Rees Street, Duntroon, Oamaru, 9494 had a Rating Valuation with a Capital Value of $500,000, Land Value of $140,000 and Improvement Value of $360,000.
| Date | Type | Price | Agent/Agency |
|---|---|---|---|
| 25 Mar 2025 | SOLD | $560,000 | |
| 16 Jan 2025 | ASKING PRICE | Price Not Disclosed | Stephen Robertson of LJ Hooker Oamaru |
| 14 Feb 2023 | Rented | $490 | |
| 18 Aug 2022 | ENQUIRIES OVER | $550,000 | James Symes of One Agency Oamaru - The Property Specialists Ltd, (Licensed: Reaa 2008) |
| 18 Dec 2017 | SOLD | $175,000 | Maree Thorpe of Essential Realty Ltd Ray White, Oamaru Licensed: |
| 15 Nov 2017 | ASKING PRICE | Price Not Disclosed | Maree Thorpe of Essential Realty Ltd Ray White, Oamaru Licensed: |
Lot 15-16 Block III Deposited Plan 80
There are no similar properties in the area that are listed for sale or recently sold.