
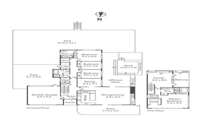
34 Minaret Ridge, Wanaka, 9305 is a Residential property built in 2017 with 4 bedrooms, 3 bathrooms and 2 parking spaces. The property is estimated to be valued in the range of $3,000,000 to $3,250,000.
The property last sold on 17 May 2023 for $3,700,000. It was sold by Whitefox Real Estate - Queenstown, (Licensed: Reaa 2008), and took 216 days to sell. On 1 September 2024, 34 Minaret Ridge, Wanaka, 9305 had a Rating Valuation with a Capital Value of $3,700,000, Land Value of $950,000 and Improvement Value of $2,750,000.
| Date | Type | Price | Agent/Agency |
|---|---|---|---|
| 17 May 2023 | SOLD | $3,700,000 | |
| 14 Oct 2022 | ENQUIRIES OVER | $3,990,000 | Kate Fairmaid of Whitefox Real Estate - Queenstown, (Licensed: Reaa 2008) |
| 10 May 2021 | SOLD | $1,500,000 | Scott McGoun of Mat Andrews Real Estate Limited, Bayleys Wanaka |
| 4 May 2021 | DEADLINE PRIVATE TREATY | Price Not Disclosed | Scott McGoun of Mat Andrews Real Estate Limited, Bayleys Wanaka, (Licensed: Reaa 2008) |
| 11 Feb 2020 | BY NEGOTIATION | Price Not Disclosed | Sharon Donnelly of Mat Andrews Real Estate Limited, Bayleys Wanaka, (Licensed: Reaa 2008) |
| 19 Dec 2014 | SOLD | $250,900 | |
| 15 Dec 2014 | DEADLINE PRIVATE TREATY | $269,000 | & Kelly Good Duncan of Wanaka Real Estate Ltd Ray White, Wanaka |
| 4 Apr 2013 | SOLD | $195,652 |
Lot 233 Deposited Plan 470852
There are no similar properties in the area that are listed for sale or recently sold.