
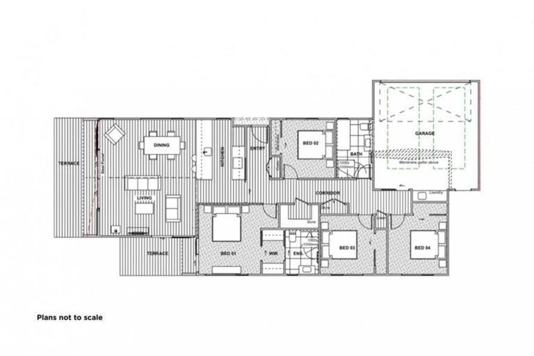
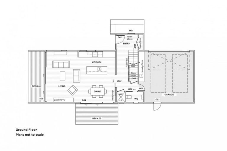
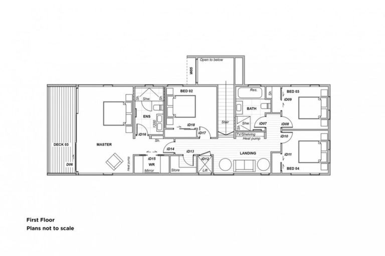
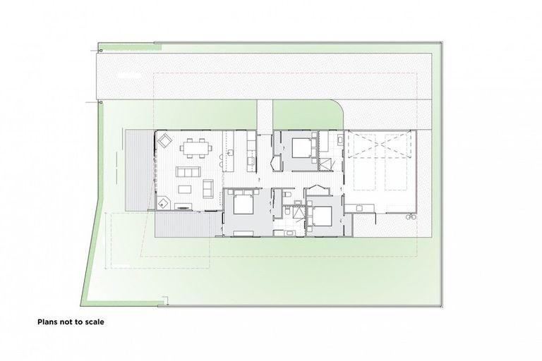
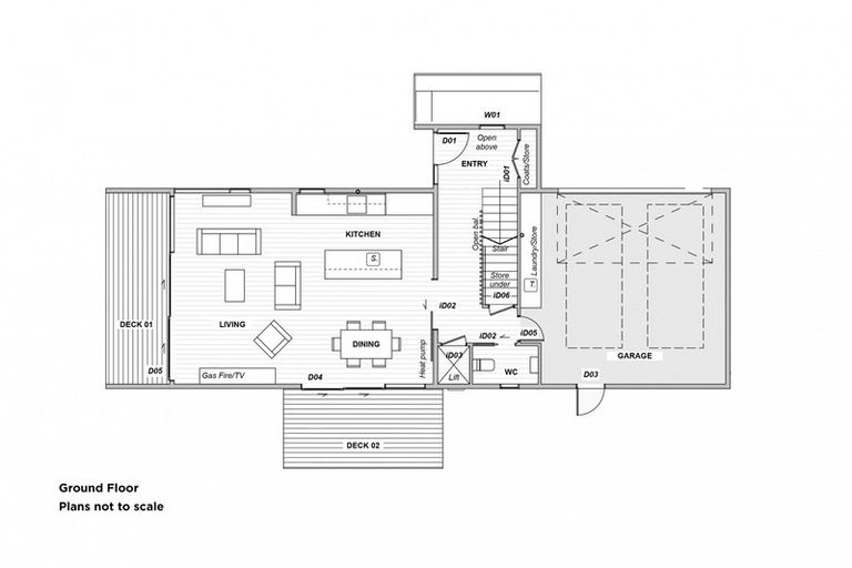
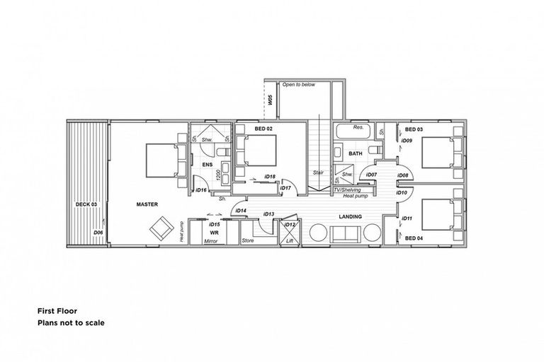
18 Robrosa Street, Wanaka, 9305 is a Residential property built in 2020 with 3 bedrooms, 2 bathrooms and 2 parking spaces. The property is estimated to be valued in the range of $1,200,000 to $1,300,000.
The property last sold on 9 October 2020 for $885,000. It was sold by Mat Andrews Real Estate Limited, Bayleys Wanaka, (Licensed: Reaa 2008), and took 26 days to sell. On 1 September 2024, 18 Robrosa Street, Wanaka, 9305 had a Rating Valuation with a Capital Value of $1,200,000, Land Value of $660,000 and Improvement Value of $540,000.
| Date | Type | Price | Agent/Agency |
|---|---|---|---|
| 6 Jul 2023 | Rented | $850 | Lisa Prince of Bayleys Property Management Wanaka |
| 13 Apr 2021 | Rented | $650 | Anna Van De Water of Mat Andrews Real Estate Limited, Bayleys Wanaka, (Licensed: Reaa 2008) |
| 9 Oct 2020 | SOLD | $885,000 | Scott McGoun of Mat Andrews Real Estate Limited, Bayleys Wanaka, (Licensed: Reaa 2008) |
| 14 Sep 2020 | ASKING PRICE | $899,000 | Scott McGoun of Mat Andrews Real Estate Limited, Bayleys Wanaka, (Licensed: Reaa 2008) |
| 7 Mar 2020 | ASKING PRICE | $1,250,000 | Sharon Donnelly of Mat Andrews Real Estate Limited, Bayleys Wanaka, (Licensed: Reaa 2008) |
| 23 Jan 2020 | SOLD | $400,000 | |
| 30 Apr 2018 | SOLD | $360,000 | |
| 13 Jan 2017 | SOLD | $355,000 |
Lot 202 Deposited Plan 526557
There are no similar properties in the area that are listed for sale or recently sold.