
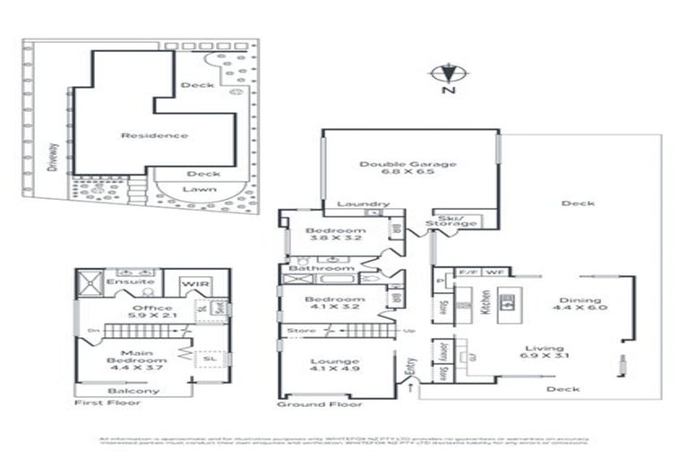
16 Robrosa Street, Wanaka, 9305 is a Residential property built in 2023 with 3 bedrooms, 2 bathrooms and 2 parking spaces. The property is estimated to be valued in the range of $2,000,000 to $2,200,000.
The property last sold on 8 March 2022 for $715,000. It was sold by Mat Andrews Real Estate Limited, Bayleys Wanaka. On 1 September 2024, 16 Robrosa Street, Wanaka, 9305 had a Rating Valuation with a Capital Value of $1,950,000, Land Value of $690,000 and Improvement Value of $1,260,000.
| Date | Type | Price | Agent/Agency |
|---|---|---|---|
| 20 Nov 2024 | BY NEGOTIATION | Price Not Disclosed | Sophia Hickman of Whitefox Real Estate - Queenstown, (Licensed: Reaa 2008) |
| 8 Mar 2022 | SOLD | $715,000 | Scott McGoun of Mat Andrews Real Estate Limited, Bayleys Wanaka |
| 21 Feb 2022 | DEADLINE PRIVATE TREATY | Price Not Disclosed | Scott McGoun of Mat Andrews Real Estate Limited, Bayleys Wanaka, (Licensed: Reaa 2008) |
| 10 Oct 2016 | SOLD | $360,000 | |
| 1 Jan 1930 | SOLD | $0 |
Lot 203 Deposited Plan 526557
There are no similar properties in the area that are listed for sale or recently sold.