
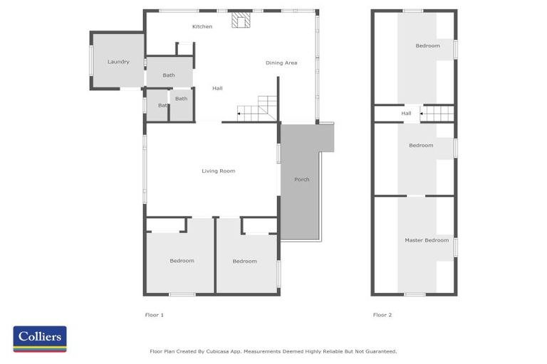
12 Shropshire Street, Kingston, Athol, 9793 is a Residential property built in 1980 with 5 bedrooms, 1 bathroom and 2 parking spaces. The property is estimated to be valued in the range of $800,000 to $900,000.
The property last sold on 18 May 2025 for $890,000. It was sold by Colliers Queenstown, (Licensed: Reaa 2008), and took 32 days to sell. On 1 September 2024, 12 Shropshire Street, Kingston, Athol, 9793 had a Rating Valuation with a Capital Value of $760,000, Land Value of $420,000 and Improvement Value of $340,000.
| Date | Type | Price | Agent/Agency |
|---|---|---|---|
| 18 May 2025 | SOLD | $890,000 | |
| 17 Apr 2025 | ASKING PRICE | $940,000 | Vicky Tomich of Colliers Queenstown, (Licensed: Reaa 2008) |
| 3 Jan 2018 | SOLD | $550,000 | Mescha Soper-Arthur of Fisken & Associates Ltd Professionals, Queenstown Licensed: Reaa 2008 |
| 25 Sep 2017 | ASKING PRICE | $565,000 | Mescha Soper-Arthur of Fisken & Associates Ltd Professionals, Queenstown Licensed: Reaa 2008 |
| 2 Feb 2012 | SOLD | $340,000 | |
| 10 Dec 2011 | ASKING PRICE | $345,000 | |
| 25 Sep 1999 | SOLD | $95,000 | |
| 1 Jan 1930 | SOLD | $0 |
Section 34 Block IX Town of Kingston
There are no similar properties in the area that are listed for sale or recently sold.