
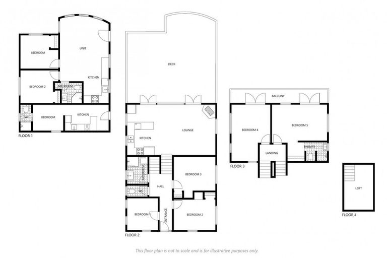
18 Dart Place, Fernhill, Queenstown, 9300 is a Residential property built in 1995 with 8 bedrooms, 5 bathrooms and 0 parking spaces. The property is estimated to be valued in the range of $1,400,000 to $1,500,000.
The property last sold on 31 July 2022 for $1,250,000. It was sold by Century 21 Aurora Real Estate, and took 26 days to sell. On 1 September 2024, 18 Dart Place, Fernhill, Queenstown, 9300 had a Rating Valuation with a Capital Value of $1,320,000, Land Value of $610,000 and Improvement Value of $710,000.
| Date | Type | Price | Agent/Agency |
|---|---|---|---|
| 31 Jul 2022 | SOLD | $1,250,000 | |
| 6 Jul 2022 | BY NEGOTIATION | Price Not Disclosed | Ria Leung of Century 21 Aurora Real Estate |
| 18 Jul 2021 | ENQUIRIES OVER | $1,200,000 | Stephen Hanrahan of Tall Poppy Queenstown |
| 22 Jul 2014 | SOLD | $635,000 | |
| 16 May 2012 | ASKING PRICE | $590,000 | Chris Campbell of Locations Realty Ltd |
| 26 Oct 2011 | DEADLINE PRIVATE TREATY | $625,000 | Jimmy Allen of Locations Realty |
| 3 Nov 2004 | SOLD | $580,000 | |
| 30 Aug 1994 | SOLD | $75,000 | |
| 1 Jul 1994 | SOLD | $55,000 | |
| 6 Nov 1993 | SOLD | $49,500 |
Lot 15 Deposited Plan 19867
There are no similar properties in the area that are listed for sale or recently sold.