
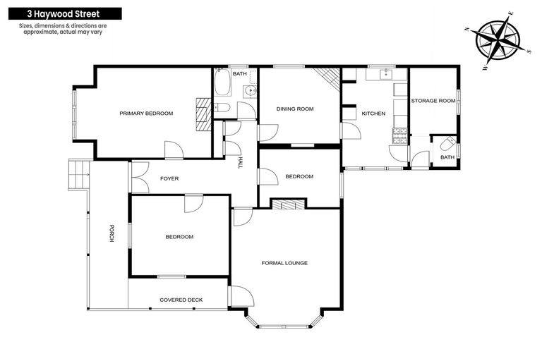
3 Haywood Street, The Glen, Dunedin, 9011 is a Residential property built in 1915 with 3 bedrooms, 1 bathroom and 1 parking space. The property is estimated to be valued in the range of $400,000 to $450,000.
The property last sold on 6 September 2025 for $350,000. It was sold by LJ Hooker Dunedin, and took 23 days to sell. On 1 June 2025, 3 Haywood Street, The Glen, Dunedin, 9011 had a Rating Valuation with a Capital Value of $370,000, Land Value of $175,000 and Improvement Value of $195,000.
| Date | Type | Price | Agent/Agency |
|---|---|---|---|
| 6 Sep 2025 | SOLD | $350,000 | |
| 15 Aug 2025 | ASKING PRICE | Price Not Disclosed | Tania McInally of LJ Hooker Dunedin |
Lot 2 Deposited Plan 362652
There are no similar properties in the area that are listed for sale or recently sold.