
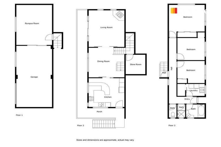
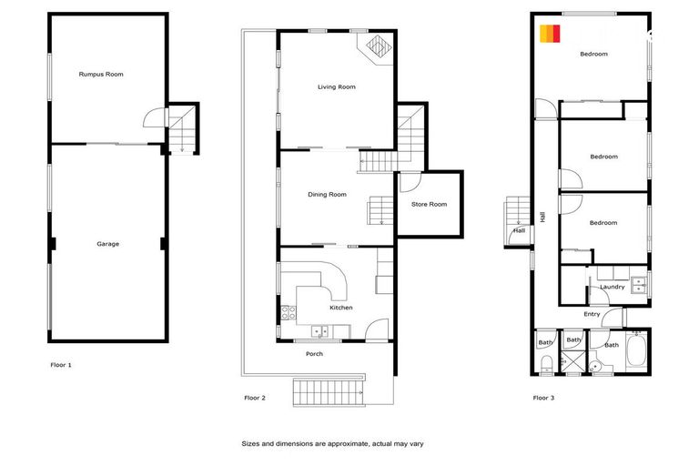
43 Elliffe Place, Shiel Hill, Dunedin, 9013 is a Residential property built in 1977 with 3 bedrooms, 1 bathroom and 1 parking space. The property is estimated to be valued in the range of $700,000 to $750,000.
The property last sold on 27 March 2024 for $660,000. It was sold by LJ Hooker Dunedin, and took 28 days to sell. On 1 June 2025, 43 Elliffe Place, Shiel Hill, Dunedin, 9013 had a Rating Valuation with a Capital Value of $670,000, Land Value of $350,000 and Improvement Value of $320,000.
| Date | Type | Price | Agent/Agency |
|---|---|---|---|
| 27 Mar 2024 | SOLD | $660,000 | |
| 29 Feb 2024 | ASKING PRICE | Price Not Disclosed | Luke Macdonald of LJ Hooker Dunedin |
| 21 Oct 1988 | SOLD | $115,000 | |
| 6 Apr 1981 | SOLD | $57,500 |
Lot 22 Deposited Plan 12074 and Lot 1 Deposited Plan 18198
There are no similar properties in the area that are listed for sale or recently sold.