
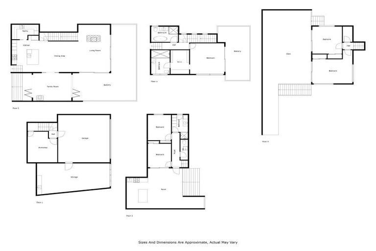
37 Moodie Street, Shiel Hill, Dunedin, 9013 is a Residential property built in 2017 with 5 bedrooms, 3 bathrooms and 2 parking spaces. The property is estimated to be valued in the range of $2,000,000 to $2,200,000.
The property last sold on 11 October 2024 for $2,000,000. It was sold by Bayleys Dunedin, (Licensed: Reaa 2008), and took 44 days to sell. On 1 June 2025, 37 Moodie Street, Shiel Hill, Dunedin, 9013 had a Rating Valuation with a Capital Value of $2,050,000, Land Value of $405,000 and Improvement Value of $1,645,000.
| Date | Type | Price | Agent/Agency |
|---|---|---|---|
| 11 Oct 2024 | SOLD | $2,000,000 | |
| 29 Aug 2024 | BY NEGOTIATION | Price Not Disclosed | Alice Munro of Bayleys Dunedin, (Licensed: Reaa 2008) |
| 12 Sep 2011 | SOLD | $115,000 | Colin Walters of Metro |
| 28 Nov 2009 | DEADLINE PRIVATE TREATY | $134,000 | Colin Walters of Metro |
| 19 Mar 2008 | SOLD | $100,000 | John & Cheryl Frew of Metro Realty |
| 17 Nov 2007 | DEADLINE PRIVATE TREATY | $115,000 | John & Cheryl Frew of Metro Realty |
| 14 Jun 2006 | SOLD | $80,000 | Peter Hermens of L J Hooker |
| 27 May 2006 | DEADLINE PRIVATE TREATY | $81,500 | Geraldine Hermens of L J Hooker |
| 25 May 2005 | SOLD | $76,000 | |
| 27 Aug 2003 | SOLD | $40,000 |
Lot 21 Deposited Plan 26236
There are no similar properties in the area that are listed for sale or recently sold.