
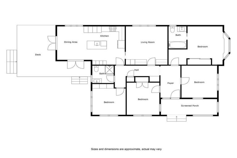
165 Surrey Street, Saint Clair, Dunedin, 9012 is a Residential property built in 1930 with 4 bedrooms, 2 bathrooms and 1 parking space. The property is estimated to be valued in the range of $650,000 to $700,000.
The property last sold on 3 June 2024 for $690,000. It was sold by One Agency - The Property Specialists, (Licensed: Reaa 2008), and took 46 days to sell. On 1 June 2025, 165 Surrey Street, Saint Clair, Dunedin, 9012 had a Rating Valuation with a Capital Value of $630,000, Land Value of $300,000 and Improvement Value of $330,000.
| Date | Type | Price | Agent/Agency |
|---|---|---|---|
| 3 Jun 2024 | SOLD | $690,000 | |
| 19 Apr 2024 | BY NEGOTIATION | Price Not Disclosed | Shane And Julie Robinson of One Agency - The Property Specialists, (Licensed: Reaa 2008) |
| 16 Aug 2011 | SOLD | $440,000 | Peter McCrea of Ray White Dunedin |
| 27 Jul 2011 | AUCTION | Price Not Disclosed | Peter McCrea of Ray White Dunedin |
| 25 Aug 2009 | SOLD | $285,222 | Hamish McDonald of Cutlers |
| 22 Aug 2009 | ASKING PRICE | $285,000 |
Allotment 29 Deposited Plan 3690
There are no similar properties in the area that are listed for sale or recently sold.