
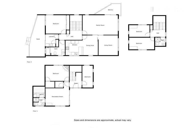
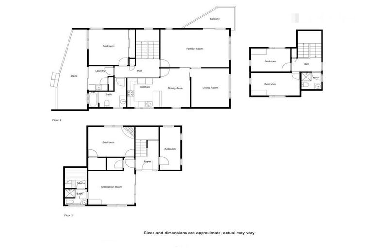
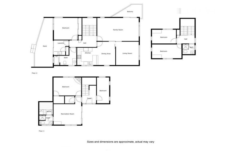
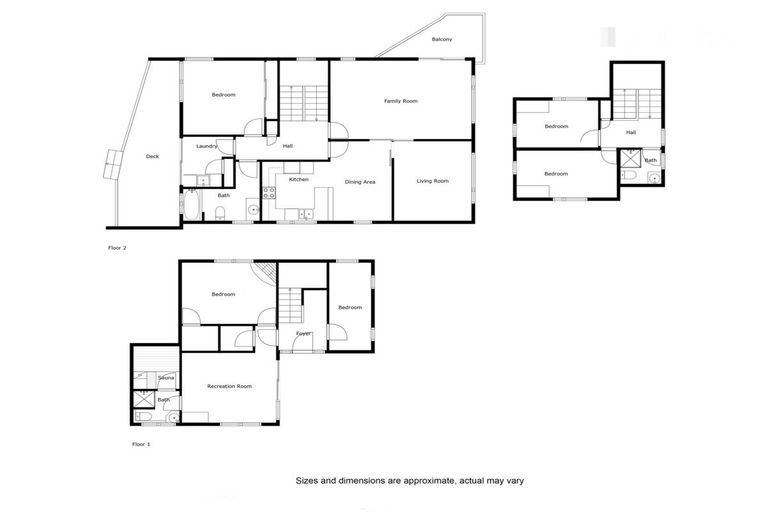
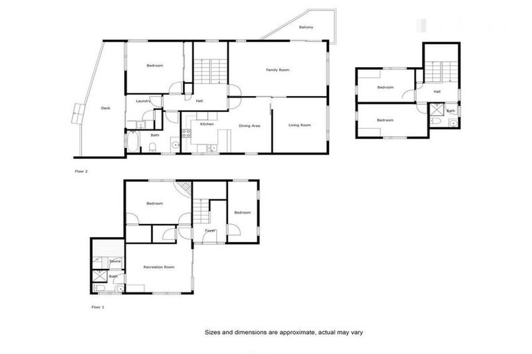
44 Littlebourne Road, Roslyn, Dunedin, 9010 is a Residential property built in 1975 with 4 bedrooms, 3 bathrooms and 2 parking spaces. The property is estimated to be valued in the range of $800,000 to $900,000.
The property last sold on 26 September 2024 for $765,000. It was sold by LJ Hooker Dunedin, and took 29 days to sell. On 1 June 2025, 44 Littlebourne Road, Roslyn, Dunedin, 9010 had a Rating Valuation with a Capital Value of $780,000, Land Value of $365,000 and Improvement Value of $415,000.
| Date | Type | Price | Agent/Agency |
|---|---|---|---|
| 26 Sep 2024 | SOLD | $765,000 | |
| 29 Aug 2024 | ASKING PRICE | Price Not Disclosed | Carol Dalton of LJ Hooker Dunedin |
| 16 Nov 2023 | BY NEGOTIATION | Price Not Disclosed | Geraldine Hermens of LJ Hooker Dunedin |
| 8 Jul 1994 | SOLD | $274,000 | |
| 10 Nov 1987 | SOLD | $177,500 | |
| 2 Oct 1985 | SOLD | $152,000 | |
| 15 Nov 1984 | SOLD | $126,000 |
Part Allotment 33 Deposited Plan 308
There are no similar properties in the area that are listed for sale or recently sold.