
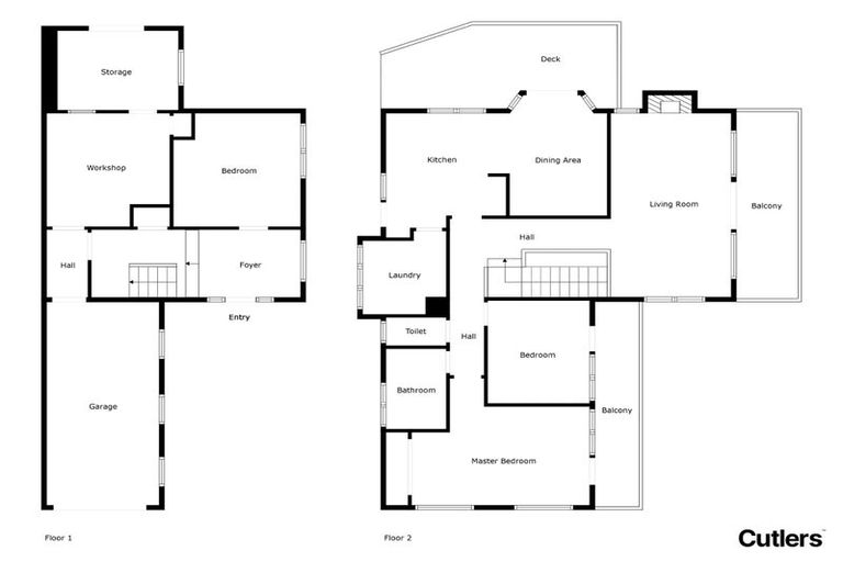
3 Prospect Row, Roseneath, Port Chalmers, 9023 is a Residential property built in 1963 with 3 bedrooms, 1 bathroom and 1 parking space. The property is estimated to be valued in the range of $800,000 to $900,000.
The property last sold on 2 September 2025 for $780,000. It was sold by Cutlers, and took 174 days to sell. On 1 June 2025, 3 Prospect Row, Roseneath, Port Chalmers, 9023 had a Rating Valuation with a Capital Value of $800,000, Land Value of $630,000 and Improvement Value of $170,000.
| Date | Type | Price | Agent/Agency |
|---|---|---|---|
| 2 Sep 2025 | SOLD | $780,000 | |
| 13 Mar 2025 | ASKING PRICE | Price Not Disclosed | Hamish McDonald of Cutlers |
| 5 Mar 1997 | SOLD | $133,000 | |
| 1 Jan 1930 | SOLD | $0 |
Lot 20 and Part Lot 18-19 Deposited Plan 98
There are no similar properties in the area that are listed for sale or recently sold.