
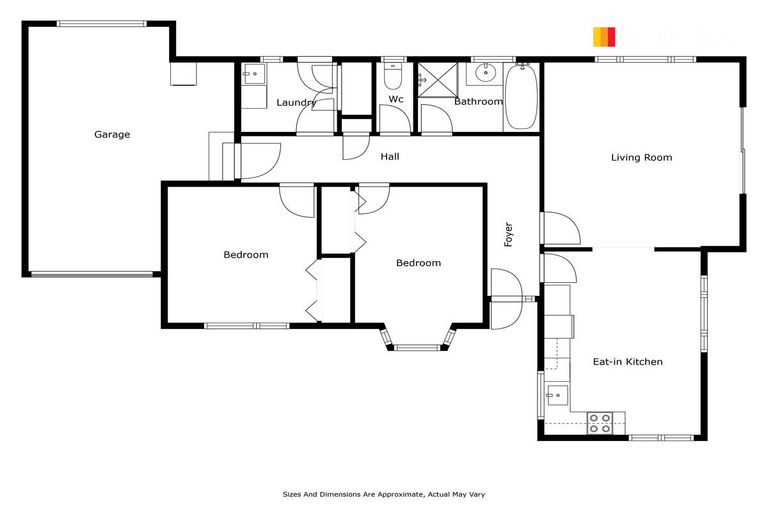
11a Lochend Street, Musselburgh, Dunedin, 9013 is a Residential property built in 1985 with 3 bedrooms, 1 bathroom and 1 parking space. The property is estimated to be valued in the range of $550,000 to $600,000.
The property last sold on 29 January 2025 for $536,000. It was sold by LJ Hooker Dunedin, and took 77 days to sell. On 1 June 2025, 11a Lochend Street, Musselburgh, Dunedin, 9013 had a Rating Valuation with a Capital Value of $550,000, Land Value of $220,000 and Improvement Value of $330,000.
| Date | Type | Price | Agent/Agency |
|---|---|---|---|
| 29 Jan 2025 | SOLD | $536,000 | |
| 14 Nov 2024 | ASKING PRICE | Price Not Disclosed | Geraldine Hermens of LJ Hooker Dunedin |
| 19 Mar 2001 | SOLD | $148,000 | |
| 11 Dec 1990 | SOLD | $130,000 |
Part Lot 12 Deposited Plan 1774
There are no similar properties in the area that are listed for sale or recently sold.