
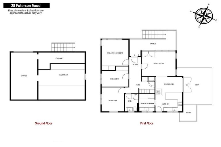
28 Paterson Road, Mosgiel, 9092 is a Residential property built in 1955 with 3 bedrooms, 1 bathroom and 1 parking space. The property is estimated to be valued in the range of $600,000 to $650,000.
The property last sold on 6 June 2018 for $421,500. It was sold by Living Corporation Ltd. On 1 June 2025, 28 Paterson Road, Mosgiel, 9092 had a Rating Valuation with a Capital Value of $570,000, Land Value of $265,000 and Improvement Value of $305,000.
| Date | Type | Price | Agent/Agency |
|---|---|---|---|
| 19 Mar 2026 | BY NEGOTIATION | Price Not Disclosed | Mike Dougherty of Edinburgh Realty Mosgiel, (Licensed: Reaa 2008) |
| 6 Jun 2018 | SOLD | $421,500 | |
| 29 May 2018 | BY NEGOTIATION | Price Not Disclosed | Judd De La Roche of Living Corporation Ltd, Licensed Agent (Reaa 2008) |
| 17 May 2012 | SOLD | $236,000 | Michael Wood of Metro Realty Limited Mreinz |
| 8 May 2012 | ASKING PRICE | $240,000 | Michael Wood of Metro Realty Limited Mreinz |
Lot 1 Deposited Plan 331114
There are no similar properties in the area that are listed for sale or recently sold.