
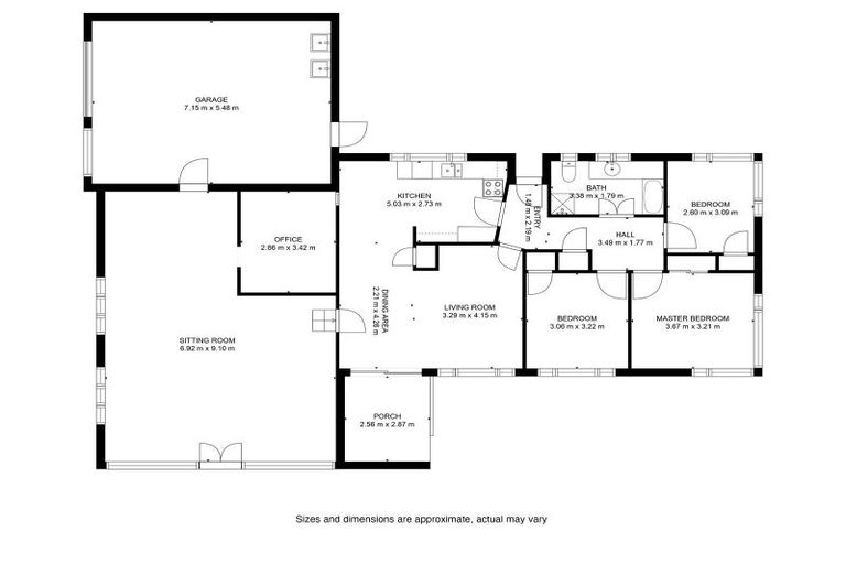
9 Lomond Place, Mosgiel, 9024 is a Residential property built in 1958 with 4 bedrooms, 1 bathroom and 1 parking space. The property is estimated to be valued in the range of $650,000 to $700,000.
The property last sold on 9 June 2023 for $590,000. It was sold by Property Brokers Dunedin, (Licensed: Reaa 2008), and took 24 days to sell. On 1 June 2025, 9 Lomond Place, Mosgiel, 9024 had a Rating Valuation with a Capital Value of $630,000, Land Value of $360,000 and Improvement Value of $270,000.
| Date | Type | Price | Agent/Agency |
|---|---|---|---|
| 22 Jun 2024 | Rented | $650 | Tania Simpson of Property Brokers Dunedin, (Licensed: Reaa 2008) |
| 9 Jun 2023 | SOLD | $590,000 | Kate Croy of Property Brokers Dunedin, (Licensed: Reaa 2008) |
| 17 May 2023 | BY NEGOTIATION | Price Not Disclosed | Kate Croy of Property Brokers Dunedin, (Licensed: Reaa 2008) |
| 16 Feb 1989 | SOLD | $80,000 |
Lot 42 Deposited Plan 8287
There are no similar properties in the area that are listed for sale or recently sold.