
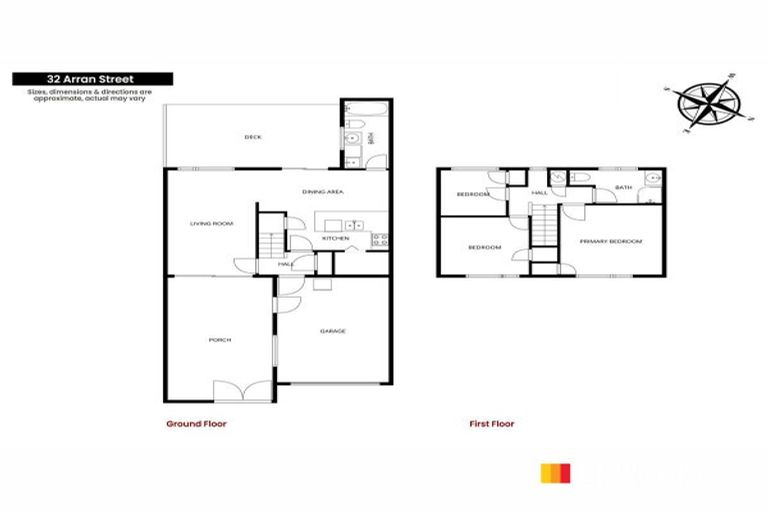
32 Arran Street, Mosgiel, 9024 is a Residential property built in 1955 with 3 bedrooms, 2 bathrooms and 1 parking space. The property is estimated to be valued in the range of $500,000 to $550,000.
It is unknown when the property was last sold or how much it was sold for. On 1 June 2025, 32 Arran Street, Mosgiel, 9024 had a Rating Valuation with a Capital Value of $490,000, Land Value of $190,000 and Improvement Value of $300,000.
| Date | Type | Price | Agent/Agency |
|---|---|---|---|
| 13 Feb 2026 | BY NEGOTIATION | Price Not Disclosed | Daryl Siggleko of LJ Hooker Dunedin |
Lot 6 Deposited Plan 595693
There are no similar properties in the area that are listed for sale or recently sold.