
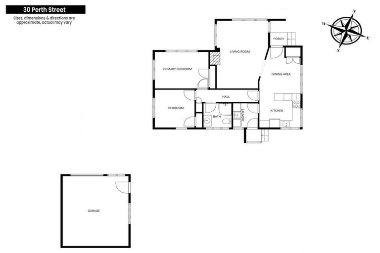
30 Perth Street, Mosgiel, 9024 is a Residential property built in 1957 with 2 bedrooms, 1 bathroom and 1 parking space. The property is estimated to be valued in the range of $500,000 to $550,000.
The property last sold on 25 March 2026 for an unknown price. It was sold by LJ Hooker Dunedin, and took 13 days to sell. On 1 June 2025, 30 Perth Street, Mosgiel, 9024 had a Rating Valuation with a Capital Value of $495,000, Land Value of $350,000 and Improvement Value of $145,000.
| Date | Type | Price | Agent/Agency |
|---|---|---|---|
| 25 Mar 2026 | $530,000 | Pending Settlement Advice | |
| 13 Mar 2026 | BY NEGOTIATION | Price Not Disclosed | Luke Macdonald of LJ Hooker Dunedin |
Lot 6 Deposited Plan 7453
There are no similar properties in the area that are listed for sale or recently sold.