
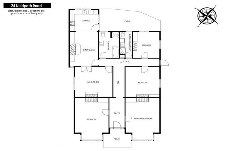
24 Neidpath Road, Mornington, Dunedin, 9011 is a Residential property built in 1910 with 4 bedrooms, 2 bathrooms and 0 parking spaces. The property is estimated to be valued in the range of $500,000 to $550,000.
The property last sold on 20 March 2023 for $480,000. It was sold by Arizto Ltd, (Licensed: Reaa 2008). On 1 June 2025, 24 Neidpath Road, Mornington, Dunedin, 9011 had a Rating Valuation with a Capital Value of $520,000, Land Value of $205,000 and Improvement Value of $315,000.
| Date | Type | Price | Agent/Agency |
|---|---|---|---|
| 23 May 2026 | Rented | $610 | Nathan Dickson of LJ Hooker Dunedin, (Licensed: Reaa 2008) |
| 18 Mar 2026 | ENQUIRIES OVER | $519,000 | Tania McInally of LJ Hooker Dunedin, (Licensed: Reaa 2008) |
| 20 Mar 2023 | SOLD | $480,000 | Kimberley Rosenbrock of Arizto Ltd, (Licensed: Reaa 2008) |
| 20 Mar 2023 | SOLD | $480,000 | |
| 16 Feb 2023 | ASKING PRICE | $499,000 | Kimberley Rosenbrock of Arizto Ltd, (Licensed: Reaa 2008) |
| 16 Feb 2023 | ASKING PRICE | $499,000 | Kimberley Rosenbrock of Arizto Ltd, (Licensed: Reaa 2008) |
| 16 Aug 2016 | SOLD | $317,500 | Madelon White of Ray White Dunedin (Proven Realty Ltd) |
| 9 Aug 2016 | ASKING PRICE | Price Not Disclosed | Madelon White of Ray White Dunedin (Proven Realty Ltd) |
| 6 May 2014 | SOLD | $210,000 | |
| 28 Feb 2014 | ASKING PRICE | $229,000 | Madelon White of Ray White Dunedin (Proven Realty Ltd) |
| 28 Feb 2013 | ASKING PRICE | $239,000 | Kay Areinz of Harcourts Dunedin |
| 30 Mar 2009 | ASKING PRICE | $269,000 | Madelon White of Living Corporation |
| 8 Feb 2002 | SOLD | $81,500 |
Lot 1 Deposited Plan 8599
There are no similar properties in the area that are listed for sale or recently sold.