
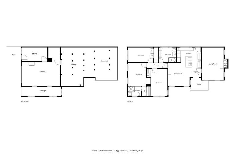
86 Grendon Street, Maori Hill, Dunedin, 9010 is a Residential property built in 1950 with 3 bedrooms, 2 bathrooms and 1 parking space. The property is estimated to be valued in the range of $1,000,000 to $1,100,000.
The property last sold on 18 February 2026 for an unknown price. It was sold by LJ Hooker Dunedin, and took 28 days to sell. On 1 June 2025, 86 Grendon Street, Maori Hill, Dunedin, 9010 had a Rating Valuation with a Capital Value of $1,000,000, Land Value of $710,000 and Improvement Value of $290,000.
| Date | Type | Price | Agent/Agency |
|---|---|---|---|
| 18 Feb 2026 | $1,265,000 | Pending Settlement Advice | |
| 22 Jan 2026 | ASKING PRICE | Price Not Disclosed | Geraldine Hermens of LJ Hooker Dunedin |
| 21 Feb 2019 | SOLD | $760,000 | Craig Palmer of Metro Realty Ltd Dunedin Licensed: Reaa 2008 |
| 31 Jan 2019 | ASKING PRICE | Price Not Disclosed | Craig Palmer of Metro Realty Ltd Dunedin Licensed: Reaa 2008 |
| 2 Oct 2014 | SOLD | $499,000 | |
| 21 May 2014 | ASKING PRICE | Price Not Disclosed | Lyndon Walker of Metro Realty Limited Mreinz |
Allotment 3 Deposited Plan 3857
There are no similar properties in the area that are listed for sale or recently sold.