
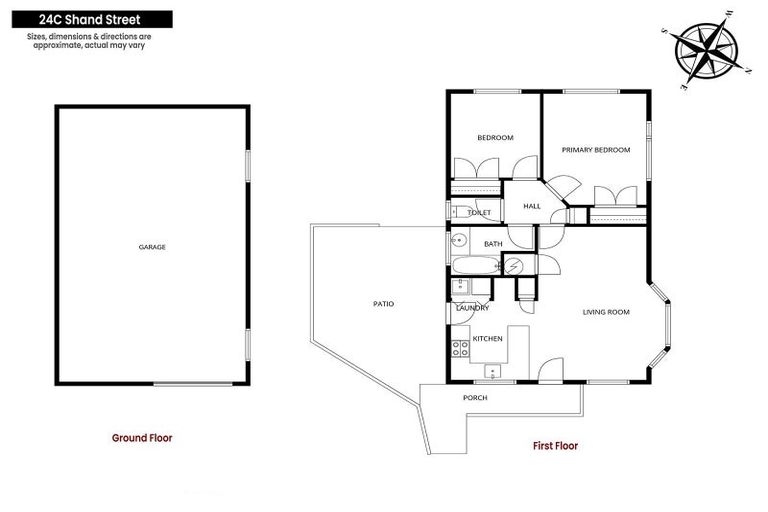
24c Shand Street, Green Island, Dunedin, 9018 is a Residential property built in 1995 with 2 bedrooms, 1 bathroom and 1 parking space. The property is estimated to be valued in the range of $500,000 to $550,000.
The property last sold on 25 May 2026 for an unknown price. On 1 June 2025, 24c Shand Street, Green Island, Dunedin, 9018 had a Rating Valuation with a Capital Value of $490,000, Land Value of $147,000 and Improvement Value of $343,000.
| Date | Type | Price | Agent/Agency |
|---|---|---|---|
| 25 May 2026 | $0 | Pending Settlement Advice | |
| 1 Apr 2026 | ENQUIRIES OVER | $515,000 | Jenny Lambert of Edinburgh Realty Mosgiel, (Licensed: Reaa 2008) |
| 20 Oct 1992 | SOLD | $113,000 |
Lot 1 Deposited Plan 22534
There are no similar properties in the area that are listed for sale or recently sold.