
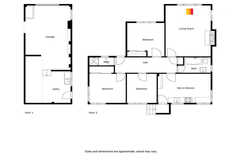
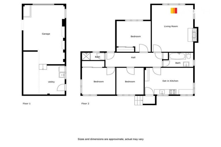
124 Martin Road, Fairfield, Dunedin, 9018 is a Residential property built in 1955 with 3 bedrooms, 1 bathroom and 1 parking space. The property is estimated to be valued in the range of $600,000 to $650,000.
The property last sold on 5 June 2024 for $580,250. It was sold by LJ Hooker Dunedin, and took 21 days to sell. On 1 June 2025, 124 Martin Road, Fairfield, Dunedin, 9018 had a Rating Valuation with a Capital Value of $570,000, Land Value of $355,000 and Improvement Value of $215,000.
| Date | Type | Price | Agent/Agency |
|---|---|---|---|
| 11 Aug 2024 | Rented | $600 | |
| 5 Jun 2024 | SOLD | $580,250 | |
| 16 May 2024 | ASKING PRICE | Price Not Disclosed | Geraldine Hermens of LJ Hooker Dunedin |
Lot 95 Deposited Plan 7142 and Lot 2 Deposited Plan 11475
There are no similar properties in the area that are listed for sale or recently sold.