
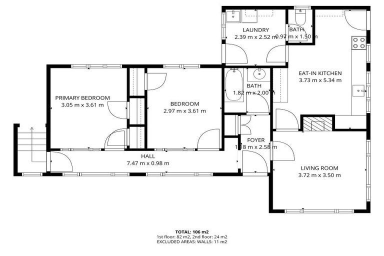
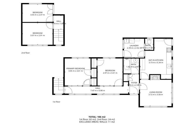
44 Peter Street, Caversham, Dunedin, 9012 is a Residential property built in 1949 with 4 bedrooms, 1 bathroom and 1 parking space. The property is estimated to be valued in the range of $450,000 to $500,000.
The property last sold on 31 January 1990 for $62,000. On 1 June 2025, 44 Peter Street, Caversham, Dunedin, 9012 had a Rating Valuation with a Capital Value of $475,000, Land Value of $220,000 and Improvement Value of $255,000.
| Date | Type | Price | Agent/Agency |
|---|---|---|---|
| 3 Mar 2026 | BY NEGOTIATION | Price Not Disclosed | Bill Miller of Property Brokers Dunedin, (Licensed: Reaa 2008) |
| 31 Jan 1990 | SOLD | $62,000 | |
| 14 Sep 1988 | SOLD | $48,000 | |
| 9 Aug 1983 | SOLD | $27,500 | |
| 18 Aug 1982 | SOLD | $26,000 |
Allotment 4-5 Block II Deeds Plan 93
There are no similar properties in the area that are listed for sale or recently sold.