
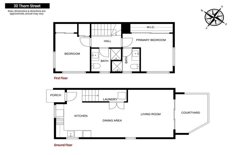
30 Thorn Street, Caversham, Dunedin, 9012 is a Residential property built in 2022 with 2 bedrooms, 2 bathrooms and 1 parking space. The property is estimated to be valued in the range of $500,000 to $550,000.
The property last sold on 3 October 2025 for $540,000. It was sold by LJ Hooker Dunedin, and took 85 days to sell. On 1 June 2025, 30 Thorn Street, Caversham, Dunedin, 9012 had a Rating Valuation with a Capital Value of $500,000, Land Value of $160,000 and Improvement Value of $340,000.
| Date | Type | Price | Agent/Agency |
|---|---|---|---|
| 22 Nov 2025 | Rented | $600 | Aleisha Cassidy of Harcourts Dunedin, (Licensed: Reaa 2008) |
| 3 Oct 2025 | SOLD | $540,000 | |
| 11 Jul 2025 | ASKING PRICE | Price Not Disclosed | Lawrence Schaumann of LJ Hooker Dunedin |
| 27 Aug 2021 | SOLD | $635,500 |
Lot 8 Deposited Plan 573904
There are no similar properties in the area that are listed for sale or recently sold.