
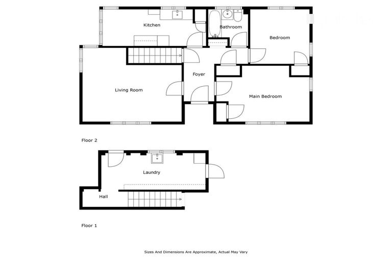
82 Panmure Avenue, Calton Hill, Dunedin, 9012 is a Residential property built in 1952 with 2 bedrooms, 1 bathroom and 0 parking spaces. The property is estimated to be valued in the range of $400,000 to $450,000.
The property last sold on 12 December 2024 for $390,000. It was sold by LJ Hooker Dunedin, (Licensed: Reaa 2008). On 1 June 2025, 82 Panmure Avenue, Calton Hill, Dunedin, 9012 had a Rating Valuation with a Capital Value of $380,000, Land Value of $220,000 and Improvement Value of $160,000.
| Date | Type | Price | Agent/Agency |
|---|---|---|---|
| 12 Dec 2024 | SOLD | $390,000 | |
| 22 Nov 2024 | ASKING PRICE | Price Not Disclosed | Trista Townsend of LJ Hooker Dunedin |
Lot 126 Deposited Plan 6967
There are no similar properties in the area that are listed for sale or recently sold.