
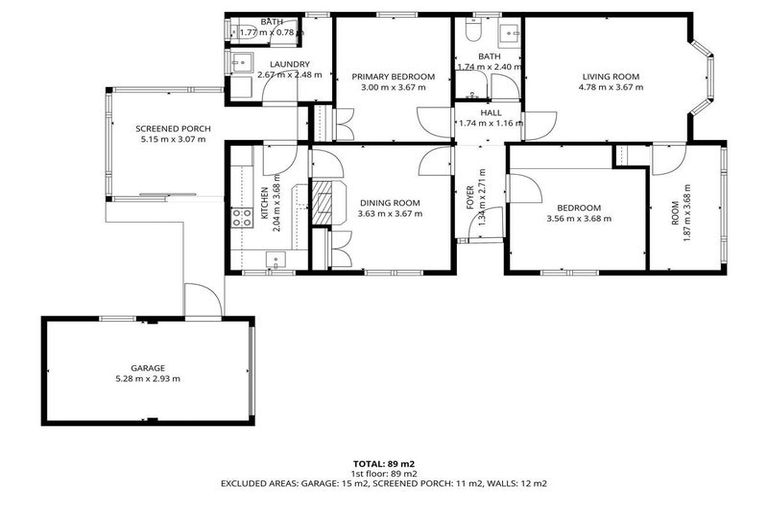
36 Duckworth Street, Andersons Bay, Dunedin, 9013 is a Residential property built in 1937 with 2 bedrooms, 1 bathroom and 1 parking space. The property is estimated to be valued in the range of $550,000 to $600,000.
The property last sold on 11 March 2026 for an unknown price. It was sold by LJ Hooker Dunedin, (Licensed: Reaa 2008). On 1 June 2025, 36 Duckworth Street, Andersons Bay, Dunedin, 9013 had a Rating Valuation with a Capital Value of $550,000, Land Value of $320,000 and Improvement Value of $230,000.
| Date | Type | Price | Agent/Agency |
|---|---|---|---|
| 11 Mar 2026 | $560,000 | Pending Settlement Advice | |
| 18 Feb 2026 | ASKING PRICE | Price Not Disclosed | Richard Knights of LJ Hooker Dunedin |
| 4 Nov 1993 | SOLD | $84,500 | |
| 1 Jun 1990 | SOLD | $70,500 | |
| 7 Dec 1987 | SOLD | $48,000 |
Lot 1 Deposited Plan 4845
There are no similar properties in the area that are listed for sale or recently sold.