
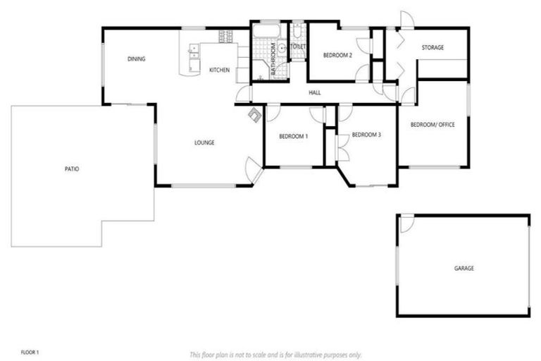
10 Missy Crescent, Mount Pisa, Cromwell, 9383 is a Residential property built in 2006 with 4 bedrooms, 1 bathroom and 1 parking space. The property is estimated to be valued in the range of $900,000 to $1,000,000.
The property last sold on 23 April 2026 for an unknown price. It was sold by Tall Poppy Central Otago, (Licensed: Reaa 2008). On 1 September 2025, 10 Missy Crescent, Mount Pisa, Cromwell, 9383 had a Rating Valuation with a Capital Value of $900,000, Land Value of $640,000 and Improvement Value of $260,000.
| Date | Type | Price | Agent/Agency |
|---|---|---|---|
| 23 Apr 2026 | $0 | Pending Settlement Advice | |
| 2 Mar 2026 | SOLD | $1,110,000 | Keeley Anderson of Tall Poppy Central Otago, (Licensed: Reaa 2008) |
| 12 Feb 2026 | BY NEGOTIATION | Price Not Disclosed | Niki Lord of Tall Poppy Central Otago, (Licensed: Reaa 2008) |
| 12 Feb 2026 | BY NEGOTIATION | Price Not Disclosed | Niki Lord of Tall Poppy Central Otago, (Licensed: Reaa 2008) |
| 19 Jul 2024 | Rented | $750 | Myrent.Co.Nz of Myrent.Co.NZ Ltd |
| 23 May 2023 | Rented | $720 | Myrent.Co.Nz of Myrent.Co.NZ Ltd |
| 30 Apr 2023 | SOLD | $770,000 | Keeley Anderson of Tall Poppy Central Otago, (Licensed: Reaa 2008) |
| 2 Feb 2023 | ENQUIRIES OVER | $820,000 | Keeley Anderson of Tall Poppy Central Otago, (Licensed: Reaa 2008) |
| 15 May 2013 | SOLD | $313,000 | Neil Bulling of Pgg Wrightson Real Estate Ltd (Cromwell) |
| 28 Mar 2013 | ASKING PRICE | $329,000 | Neil Bulling of Pgg Wrightson Real Estate Ltd (Cromwell) |
| 5 Jan 2005 | SOLD | $105,000 |
Lot 24 Deposited Plan 337815
There are no similar properties in the area that are listed for sale or recently sold.