
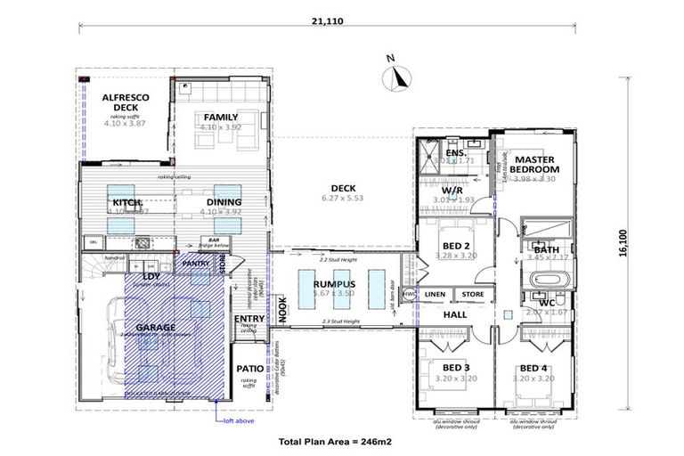
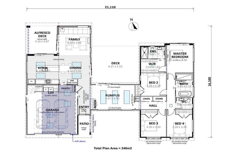
Wooing Tree Vineyard Ltd, 1 Vintage Street, Cromwell, 9310 is a Residential property built in 2021 with 5 bedrooms, 2 bathrooms and 2 parking spaces. The property is estimated to be valued in the range of $1,800,000 to $2,000,000.
The property last sold on 10 July 2023 for $1,650,000. It was sold by Ray White Arrowtown - Wakatipu Realty Group Ltd, (Licensed: Reaa 2008), and took 117 days to sell. On 1 September 2025, Wooing Tree Vineyard Ltd, 1 Vintage Street, Cromwell, 9310 had a Rating Valuation with a Capital Value of $1,870,000, Land Value of $650,000 and Improvement Value of $1,220,000.
| Date | Type | Price | Agent/Agency |
|---|---|---|---|
| 10 Mar 2025 | BY NEGOTIATION | Price Not Disclosed | Steve Cairns - The Green Team of Arizto Ltd, (Licensed: Reaa 2008) |
| 31 Oct 2024 | BY NEGOTIATION | Price Not Disclosed | Jake Lucas of Harcourts Cromwell, (Licensed: Reaa 2008) |
| 10 Jul 2023 | SOLD | $1,650,000 | Sarah Mare of Ray White Arrowtown - Wakatipu Realty Group Ltd, (Licensed: Reaa 2008) |
| 16 Mar 2023 | ASKING PRICE | $1,790,000 | Sarah Mare of Ray White Arrowtown - Wakatipu Realty Group Ltd, (Licensed: Reaa 2008) |
| 1 Jan 1930 | SOLD | $0 |
Lot 5 Deposited Plan 560535
There are no similar properties in the area that are listed for sale or recently sold.