
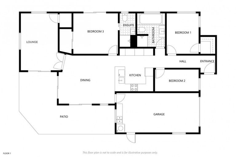
44b Barry Avenue, Cromwell, 9310 is a Residential property built in 2018 with 3 bedrooms, 2 bathrooms and 1 parking space. The property is estimated to be valued in the range of $800,000 to $900,000.
The property last sold on 15 February 2022 for $775,000. It was sold by Tall Poppy Central Otago, and took 16 days to sell. On 1 September 2025, 44b Barry Avenue, Cromwell, 9310 had a Rating Valuation with a Capital Value of $880,000, Land Value of $350,000 and Improvement Value of $530,000.
| Date | Type | Price | Agent/Agency |
|---|---|---|---|
| 10 May 2024 | Rented | $585 | Nikki Jenkins of Pgg Wrightson Real Estate Ltd (Cromwell), (Licensed: Reaa 2008) |
| 15 Feb 2022 | SOLD | $775,000 | Keeley Anderson of Tall Poppy Central Otago |
| 31 Jan 2022 | ENQUIRIES OVER | $750,000 | Keeley Anderson of Tall Poppy Central Otago |
| 27 Aug 2020 | SOLD | $520,000 |
Lot 2 Deposited Plan 504251
There are no similar properties in the area that are listed for sale or recently sold.