
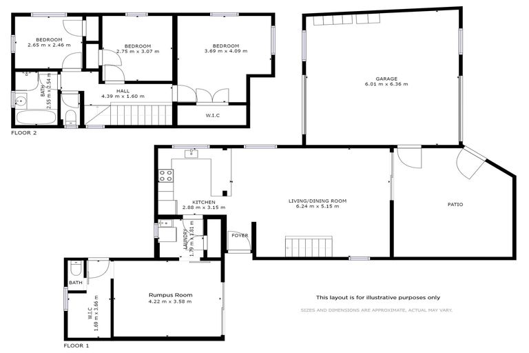
17 Coleridge Place, Tikipunga, Whangarei, 0112 is a Residential property built in 1980 with 3 bedrooms, 1 bathroom and 1 parking space. The property is estimated to be valued in the range of $500,000 to $550,000.
The property last sold on 3 August 2018 for $387,000. It was sold by Asset Realty Ltd LJ Hooker, Whangarei Licensed: Reaa 2008. On 1 July 2024, 17 Coleridge Place, Tikipunga, Whangarei, 0112 had a Rating Valuation with a Capital Value of $500,000, Land Value of $205,000 and Improvement Value of $295,000.
| Date | Type | Price | Agent/Agency |
|---|---|---|---|
| 3 Aug 2018 | SOLD | $387,000 | Melanie Waldron of Asset Realty Ltd LJ Hooker, Whangarei Licensed: Reaa 2008 |
| 24 Jul 2018 | BY NEGOTIATION | Price Not Disclosed | Melanie Waldron of Eves Real Estate Whangarei - Eren Limited, Licensed Agent (Reaa 2008) |
| 5 Jul 2010 | SOLD | $250,000 | Toni Sherwood of Allens Goode Leith Realty |
| 2 Apr 2010 | DEADLINE PRIVATE TREATY | $269,000 | Toni Sherwood of Allens Goode Leith Realty |
| 5 Aug 2006 | SOLD | $250,000 | |
| 23 Jan 2006 | SOLD | $209,000 | |
| 11 May 2004 | SOLD | $142,500 | |
| 29 Jun 2001 | SOLD | $128,000 | |
| 8 May 1989 | SOLD | $77,000 | |
| 14 Oct 1980 | SOLD | $35,500 |
Flat 2 Deposited Plan 92425
There are no similar properties in the area that are listed for sale or recently sold.