
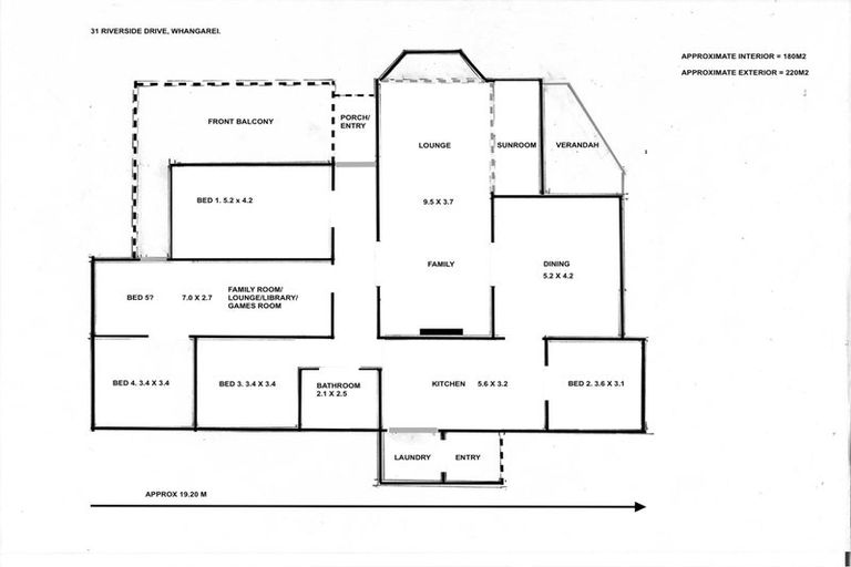
31 Riverside Drive, Riverside, Whangarei, 0112 is a Residential property built in 1905 with 4 bedrooms, 1 bathroom and 2 parking spaces. The property is estimated to be valued in the range of $700,000 to $750,000.
The property last sold on 24 November 2022 for $1,175,000. It was sold by Tait Real Estate (Est 1960) Ltd. On 1 July 2024, 31 Riverside Drive, Riverside, Whangarei, 0112 had a Rating Valuation with a Capital Value of $725,000, Land Value of $600,000 and Improvement Value of $125,000.
| Date | Type | Price | Agent/Agency |
|---|---|---|---|
| 14 Jun 2023 | ASKING PRICE | $35,000 | |
| 16 Dec 2022 | ASKING PRICE | $45,000 | |
| 24 Nov 2022 | SOLD | $1,175,000 | |
| 6 May 2022 | AUCTION | Price Not Disclosed | Jenny Fairley of Tait Real Estate Ltd Mreinz |
| 24 Aug 1990 | SOLD | $150,000 | |
| 20 Apr 1988 | SOLD | $100,000 |
Lot 2 Deposited Plan 50448
There are no similar properties in the area that are listed for sale or recently sold.