
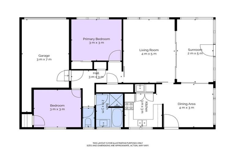
19 King Street, Kensington, Whangarei, 0112 is a Residential property built in 1975 with 2 bedrooms, 1 bathroom and 1 parking space. The property is estimated to be valued in the range of $450,000 to $500,000.
The property last sold on 14 August 2024 for $489,000. It was sold by Harcourts Whangarei. On 1 July 2024, 19 King Street, Kensington, Whangarei, 0112 had a Rating Valuation with a Capital Value of $510,000, Land Value of $180,000 and Improvement Value of $330,000.
| Date | Type | Price | Agent/Agency |
|---|---|---|---|
| 14 Aug 2024 | SOLD | $489,000 | |
| 14 Aug 2024 | ASKING PRICE | $489,000 | Jennifer Starr of Harcourts Whangarei, (Licensed: Reaa 2008) |
| 11 May 2023 | ENQUIRIES OVER | $475,000 | Pauline Dinsdale of Pcd Limited (Licensed Agent Reaa 2008), (Licensed: Reaa 2008) |
| 6 Dec 2009 | SOLD | $246,000 | Murray Jones of Allens Goode Leith Realty |
| 18 Nov 2009 | ASKING PRICE | $250,000 | Murray Jones of Allens Goode Leith Realty |
| 16 Jul 2008 | SOLD | $235,000 | Pauline Dinsdale of Ray White |
| 12 Mar 2008 | DEADLINE PRIVATE TREATY | $249,000 | Pauline Dinsdale of Ray White |
| 9 May 1994 | SOLD | $114,000 | |
| 6 Sep 1988 | SOLD | $95,000 | |
| 19 Aug 1985 | SOLD | $75,000 |
Lot 64 Deposited Plan 17077
There are no similar properties in the area that are listed for sale or recently sold.