
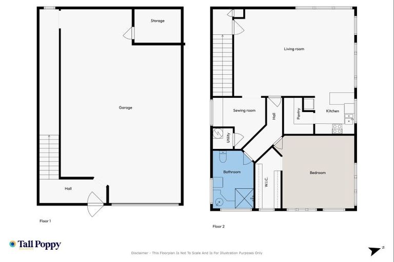
21 Lammas Street, Richmond, 7020 is a Residential property built in 1987 with 1 bedroom, 1 bathroom and 3 parking spaces. The property is estimated to be valued in the range of $500,000 to $550,000.
The property last sold on 15 May 2025 for $430,000. It was sold by Tall Poppy. On 1 September 2023, 21 Lammas Street, Richmond, 7020 had a Rating Valuation with a Capital Value of $520,000, Land Value of $290,000 and Improvement Value of $230,000.
| Date | Type | Price | Agent/Agency |
|---|---|---|---|
| 15 May 2025 | SOLD | $430,000 | |
| 21 Apr 2025 | ENQUIRIES OVER | $399,000 | Nathan Dunn of Tall Poppy Nelson, (Licensed: Reaa 2008) |
Lot 2 Deposited Plan 12990
There are no similar properties in the area that are listed for sale or recently sold.