1 of 15Mar 21
Loading...

41c High Street Motueka, 7120


41c High Street , Motueka, 7120
bed1
bathroom1
car-
land-
floor86 m2
Property Type
Residential
Year Built
1965
Last Sold on 29 Mar 2021 for $340,000
Settlement Date
30 Apr 2021
Sold By
Tall Poppy Nelson
Settlement Date
30 Apr 2021
Sold By
Tall Poppy Nelson

Estimated Value Range  


An estimate of value is not currently available for this property. There could be insufficient property information or recent sales data. The property could be out of scope (e.g. non-residential, highly unique, rural) or the estimate cannot be determined with high enough confidence.

About 41c High Street, Motueka, 7120

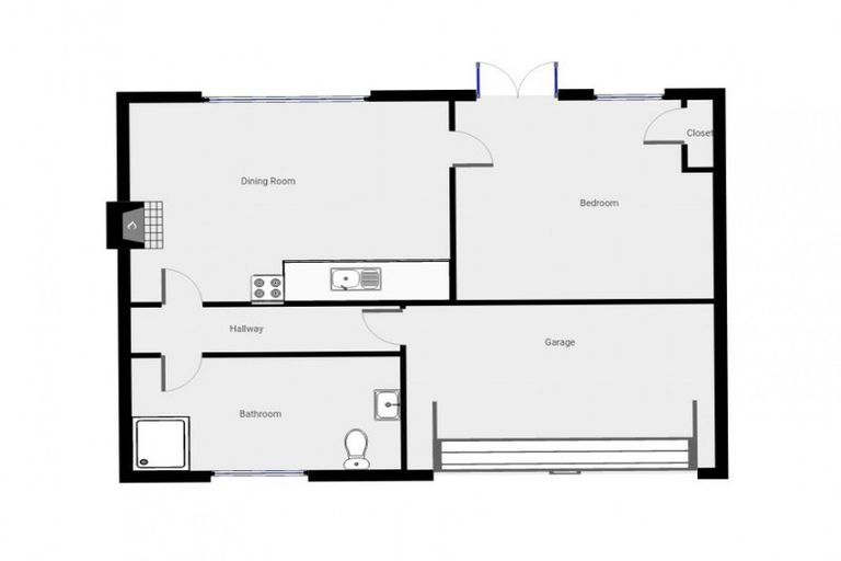
41c High Street, Motueka, 7120 is a Residential property built in 1965 with 1 bedroom, 1 bathroom and 0 parking spaces. Due to insufficient data, the value of the property cannot be estimated.

The property last sold on 29 March 2021 for $340,000. It was sold by Tall Poppy Nelson. On 1 September 2023, 41c High Street, Motueka, 7120 had a Rating Valuation with a Capital Value of $335,000, Land Value of $135,000 and Improvement Value of $200,000.

Property History

DateTypePriceAgent/Agency
29 Mar 2021SOLD$340,000Karen Holliday of Tall Poppy Nelson
22 Mar 2021ENQUIRIES OVER$245,000Karen Holliday of Tall Poppy Nelson, (Licensed: Reaa 2008)
14 Jan 2003SOLD$70,000
29 Jul 1985SOLD$29,000
Present Day
29 Mar
2021
Sold for $340,000
4 years 8 months 18 days
Sold by Karen Holliday of Tall Poppy Nelson
22 Mar
2021
Enquiries Over — $245,000
Listed by Karen Holliday of Tall Poppy Nelson, (Licensed: Reaa 2008)
14 Jan
2003
Sold for $70,000
22 years 11 months 3 days
29 Jul
1985
Sold for $29,000
40 years 4 months 18 days
1965
Property Built

Commute Calculator

-
-
-
-

Rating Valuation

Capital Value
$335,000
Land Value
$135,000
Improvement Value
$200,000
Legal Description(s)

Flat 3 Deposited Plan 12134

Valuation Date
01-09-2023
Valuation Reference
19550/5700C

Additional Information

Roof Construction
Steel/G-Iron
Zone
Residential Zone A, 9A
Units of Use
1
Wall Construction
Steel/G-Iron
Maori Land
No
Territorial Authority
Tasman District
Land Use
Single Unit excluding Bach

Suburb Insights

Comparable Properties

There are no similar properties in the area that are listed for sale or recently sold.