
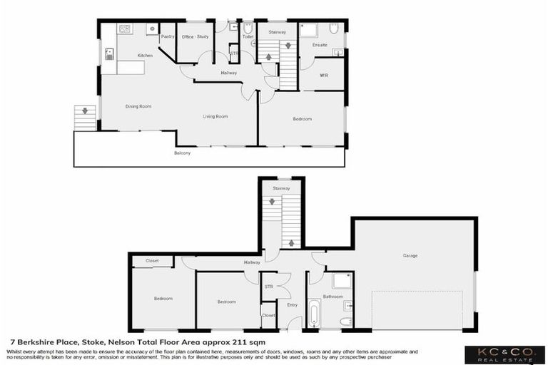
7 Berkshire Place, Stoke, Nelson, 7011 is a Residential property built in 2013 with 3 bedrooms, 2 bathrooms and 2 parking spaces. The property is estimated to be valued in the range of $900,000 to $1,000,000.
The property last sold on 23 August 2007 for $165,000. On 1 September 2024, 7 Berkshire Place, Stoke, Nelson, 7011 had a Rating Valuation with a Capital Value of $980,000, Land Value of $355,000 and Improvement Value of $625,000.
| Date | Type | Price | Agent/Agency |
|---|---|---|---|
| 19 Apr 2023 | ENQUIRIES OVER | $1,070,000 | Kat Campbell of Kat Campbell & Co. Real Estate, (Licensed: Reaa 2008) |
| 13 May 2011 | ASKING PRICE | $155,000 | |
| 13 Mar 2010 | DEADLINE PRIVATE TREATY | $155,000 | Mike Murphy of First National Richmond |
| 23 Aug 2007 | SOLD | $165,000 |
Lot 113 Deposited Plan 360619
There are no similar properties in the area that are listed for sale or recently sold.