
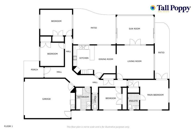
22 Kendall View, Stoke, Nelson, 7011 is a Residential property built in 2003 with 4 bedrooms, 2 bathrooms and 2 parking spaces. The property is estimated to be valued in the range of $800,000 to $900,000.
The property last sold on 4 May 2024 for $820,000. It was sold by Tall Poppy Nelson, (Licensed: Reaa 2008), and took 26 days to sell. On 1 September 2024, 22 Kendall View, Stoke, Nelson, 7011 had a Rating Valuation with a Capital Value of $820,000, Land Value of $400,000 and Improvement Value of $420,000.
| Date | Type | Price | Agent/Agency |
|---|---|---|---|
| 4 May 2024 | SOLD | $820,000 | |
| 9 Apr 2024 | BY NEGOTIATION | Price Not Disclosed | John Eggleton of Tall Poppy Nelson, (Licensed: Reaa 2008) |
| 14 Mar 2003 | SOLD | $305,000 |
Lot 13 Deposited Plan 310003
There are no similar properties in the area that are listed for sale or recently sold.