
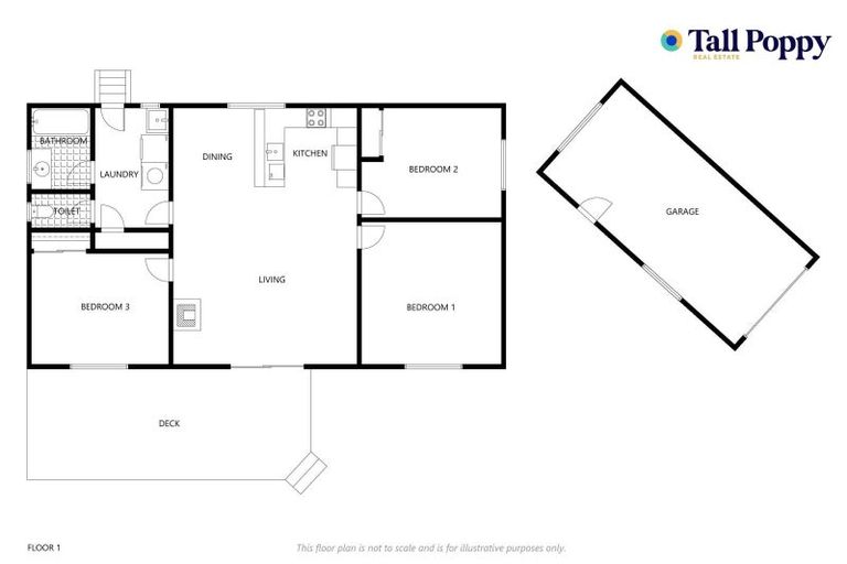
7a Grant Place, Witherlea, Blenheim, 7201 is a Residential property built in 1985 with 3 bedrooms, 1 bathroom and 1 parking space. The property is estimated to be valued in the range of $500,000 to $550,000.
The property last sold on 16 May 2024 for $515,000. It was sold by Tall Poppy Blenheim, (Licensed: Reaa 2008), and took 8 days to sell. On 1 July 2023, 7a Grant Place, Witherlea, Blenheim, 7201 had a Rating Valuation with a Capital Value of $470,000, Land Value of $320,000 and Improvement Value of $150,000.
| Date | Type | Price | Agent/Agency |
|---|---|---|---|
| 26 Jan 2026 | Rented | $600 | Neal Williams of Nco Properties Ltd |
| 24 Jan 2025 | Rented | $600 | Neal Williams of Nco Properties Ltd |
| 15 Aug 2024 | Rented | $580 | Neal Williams of Nco Properties Ltd |
| 16 May 2024 | SOLD | $515,000 | |
| 9 May 2024 | ENQUIRIES OVER | $515,000 | Rachel Roberts of Tall Poppy Blenheim, (Licensed: Reaa 2008) |
| 9 Aug 2017 | SOLD | $312,000 | |
| 21 Dec 2015 | SOLD | $265,000 | Nadine Thomas of Summit Real Estate Ltd, Blenheim |
| 1 Dec 2015 | ASKING PRICE | $275,000 | Nadine Thomas of Summit Real Estate Ltd, Blenheim |
| 13 Nov 2014 | DEADLINE PRIVATE TREATY | $249,000 | Madsen Michelle of Mark Stevenson First National Real Estate Ltd Ble |
| 21 Aug 2006 | SOLD | $235,000 | Kerryn Barnes of Summit Real Estate |
| 13 Jul 2006 | DEADLINE PRIVATE TREATY | $249,000 | Kerryn Barnes of Summit Real Estate |
| 15 Feb 2005 | SOLD | $188,000 | |
| 18 Nov 1988 | SOLD | $69,000 | |
| 11 Jan 1985 | SOLD | $11,500 |
Lot 4 Deposited Plan 5731
There are no similar properties in the area that are listed for sale or recently sold.