
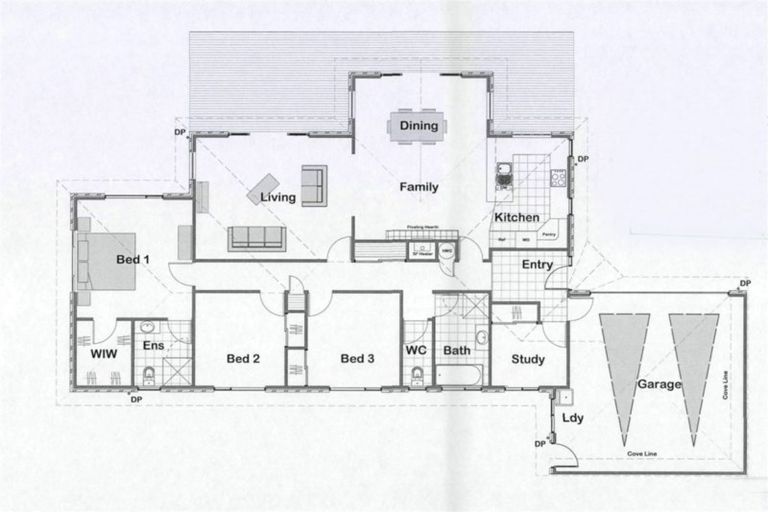
5 Oudenarde Street, Renwick, 7204 is a Residential property built in 2009 with 4 bedrooms, 2 bathrooms and 2 parking spaces. The property is estimated to be valued in the range of $750,000 to $800,000.
The property last sold on 16 August 2019 for $560,250. It was sold by Marlborough Real Estate 2008 Ltd, (Licensed: Reaa 2008), and took 39 days to sell. On 1 July 2023, 5 Oudenarde Street, Renwick, 7204 had a Rating Valuation with a Capital Value of $760,000, Land Value of $340,000 and Improvement Value of $420,000.
| Date | Type | Price | Agent/Agency |
|---|---|---|---|
| 16 Aug 2019 | SOLD | $560,250 | |
| 9 Jul 2019 | ASKING PRICE | $559,000 | Bryan Palmer of Marlborough Real Estate 2008 Ltd, (Licensed: Reaa 2008) |
| 2 May 2013 | SOLD | $415,000 | Craig Searle of Marlborough Real Estate 2008 Ltd |
| 24 Nov 2012 | ASKING PRICE | $419,000 | Craig Searle of Marlborough Real Estate 2008 Ltd |
| 3 Aug 2008 | SOLD | $143,500 |
Lot 7 Deposited Plan 396256
There are no similar properties in the area that are listed for sale or recently sold.