
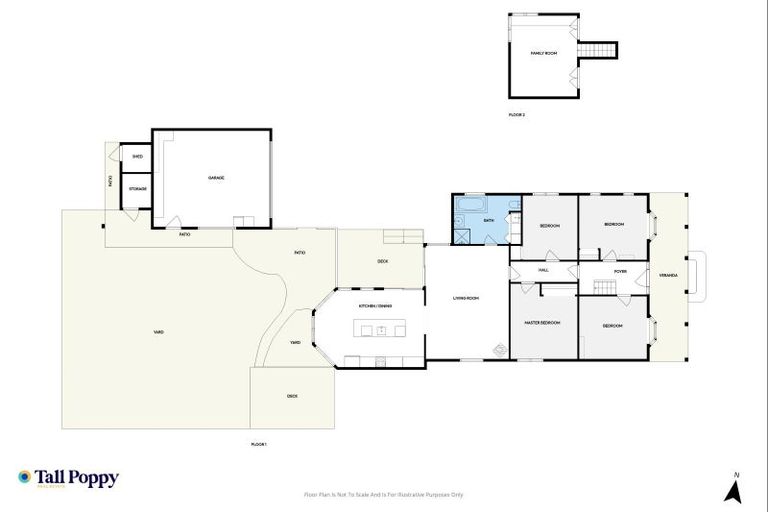
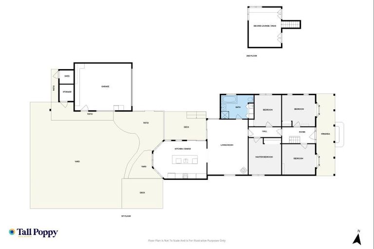
50 Beaver Road, Blenheim, 7201 is a Residential property built in 1910 with 4 bedrooms, 1 bathroom and 2 parking spaces. The property is estimated to be valued in the range of $800,000 to $900,000.
The property last sold on 22 February 2022 for $900,000. It was sold by Winder & Co, (Licensed: Reaa 2008), and took 41 days to sell. On 1 July 2023, 50 Beaver Road, Blenheim, 7201 had a Rating Valuation with a Capital Value of $800,000, Land Value of $440,000 and Improvement Value of $360,000.
| Date | Type | Price | Agent/Agency |
|---|---|---|---|
| 2 Oct 2025 | ASKING PRICE | $835,000 | Ben Elborough of Tall Poppy Blenheim, (Licensed: Reaa 2008) |
| 22 Feb 2022 | SOLD | $900,000 | Kirsty Winder of Winder & Co, (Licensed: Reaa 2008) |
| 13 Jan 2022 | BY NEGOTIATION | Price Not Disclosed | Kirsty Winder of Winder & Co, (Licensed: Reaa 2008) |
| 8 Dec 2015 | SOLD | $350,000 | John Ealand of Summit Real Estate Ltd, Blenheim |
| 8 Oct 2015 | ASKING PRICE | $375,000 | John Ealand of Summit Real Estate Ltd, Blenheim |
Lot 6 Deeds Plan 36
There are no similar properties in the area that are listed for sale or recently sold.