1 of 35Apr 24
Loading...

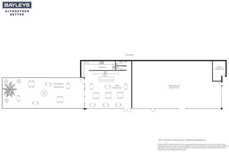
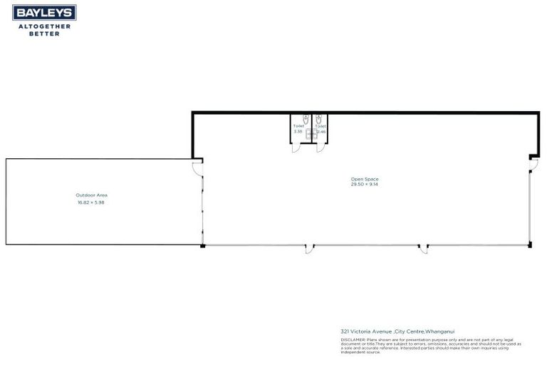
321 Victoria Avenue Whanganui, 4500


321 Victoria Avenue , Whanganui, 4500
bed-
bathroom9
car-
land1209 m2
floor868 m2
Property Type
Residential
Year Built
2024
Last Sale information not available

Estimated Value Range  


An estimate of value is not currently available for this property. There could be insufficient property information or recent sales data. The property could be out of scope (e.g. non-residential, highly unique, rural) or the estimate cannot be determined with high enough confidence.

About 321 Victoria Avenue, Wanganui, 4500

321 Victoria Avenue, Wanganui, 4500 is a Residential property built in 2024 with 0 bedrooms, 9 bathrooms and 0 parking spaces. Due to insufficient data, the value of the property cannot be estimated.

It is unknown when the property was last sold or how much it was sold for. On 1 September 2025, 321 Victoria Avenue, Wanganui, 4500 had a Rating Valuation with a Capital Value of $4,350,000, Land Value of $840,000 and Improvement Value of $3,510,000.

Property History

DateTypePriceAgent/Agency
16 Feb 2024RentedPrice Not DisclosedGil Button of Property Brokers Whanganui, (Licensed: Reaa 2008)
Present Day
16 Feb
2024
Listed for Rent - Last price at Price Not Disclosed
Listed by Gil Button of Property Brokers Whanganui, (Licensed: Reaa 2008)
2024
Property Built

Commute Calculator

-
-
-
-

Rating Valuation

Capital Value
$4,350,000
Land Value
$840,000
Improvement Value
$3,510,000
Legal Description(s)

Lot 1 Deposited Plan 552974

Valuation Date
01-09-2025
Valuation Reference
13160/8101

Additional Information

Roof Construction
Steel/G-Iron
Zone
Commercial Zone B, 8B
Units of Use
9
Wall Construction
Concrete
Maori Land
No
Territorial Authority
Whanganui District
Land Use
-

Suburb Insights

Comparable Properties

There are no similar properties in the area that are listed for sale or recently sold.