
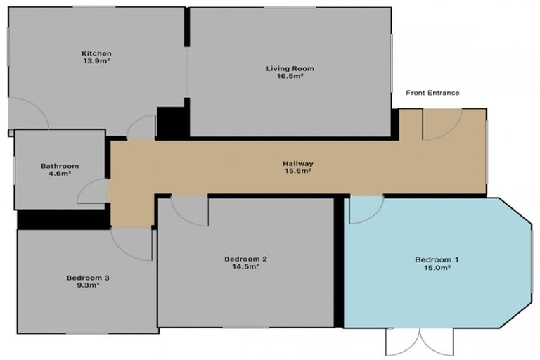
20 Hurworth Place, College Estate, Whanganui, 4500 is a Residential property built in 1910 with 3 bedrooms, 1 bathroom and 1 parking space. The property is estimated to be valued in the range of $450,000 to $500,000.
The property last sold on 7 November 2020 for $465,002. It was sold by Bayleys Wanganui, (Licensed: Reaa 2008), and took 11 days to sell. On 1 September 2025, 20 Hurworth Place, College Estate, Whanganui, 4500 had a Rating Valuation with a Capital Value of $470,000, Land Value of $235,000 and Improvement Value of $235,000.
| Date | Type | Price | Agent/Agency |
|---|---|---|---|
| 7 Nov 2020 | SOLD | $465,002 | Lyn Wickham of Bayleys Wanganui, (Licensed: Reaa 2008) |
| 28 Oct 2020 | ENQUIRIES OVER | $445,000 | Lyn Wickham of Bayleys Wanganui, (Licensed: Reaa 2008) |
| 6 Jan 1997 | SOLD | $65,000 | |
| 25 Sep 1987 | SOLD | $34,000 |
Lot 2 Deposited Plan 28335
There are no similar properties in the area that are listed for sale or recently sold.