
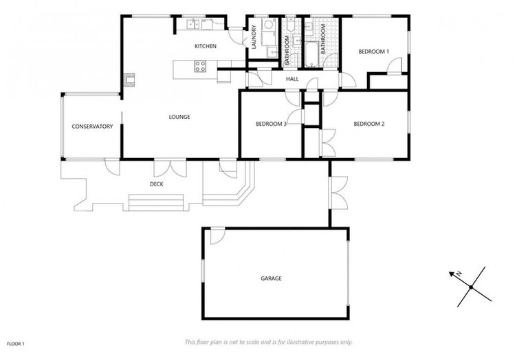
21 Moore Street, West End, Palmerston North, 4412 is a Residential property built in 1985 with 3 bedrooms, 1 bathroom and 1 parking space. The property is estimated to be valued in the range of $450,000 to $500,000.
The property last sold on 20 November 2025 for an unknown price. It was sold by Harcourts Palmerston North. On 1 September 2024, 21 Moore Street, West End, Palmerston North, 4412 had a Rating Valuation with a Capital Value of $485,000, Land Value of $250,000 and Improvement Value of $235,000.
| Date | Type | Price | Agent/Agency |
|---|---|---|---|
| 20 Nov 2025 | SOLD | $0 | |
| 4 Nov 2025 | ASKING PRICE | Price Not Disclosed | Fletcher Hautapu of Team Manawatu Realty Limited, (Licensed: Reaa 2008) |
| 17 Feb 2022 | ENQUIRIES OVER | $625,000 | Mike Dixon of Tall Poppy Manawatu |
| 13 Dec 2017 | ASKING PRICE | $285,000 | Mike Dixon of Property Brokers Ltd Palmerston North Licensed: R |
| 10 Dec 2017 | SOLD | $305,000 | Mike Dixon of Property Brokers Ltd Palmerston North Licensed: R |
| 13 Dec 2008 | DEADLINE PRIVATE TREATY | $205,000 | Jeannie Boswell of LJ Hooker Manawatu |
| 11 Dec 2008 | SOLD | $210,000 | Jeannie Boswell of LJ Hooker Manawatu |
| 22 Apr 2000 | SOLD | $108,000 | |
| 26 Nov 1998 | SOLD | $102,000 | |
| 27 Jul 1996 | SOLD | $100,000 | |
| 24 Feb 1984 | SOLD | $13,000 | |
| 18 Mar 1981 | SOLD | $11,500 |
Lot 3 Deposited Plan 77949
There are no similar properties in the area that are listed for sale or recently sold.