
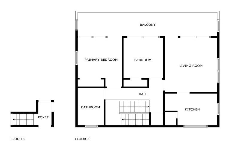
5 Te Awe Awe Court, Hokowhitu, Palmerston North, 4410 is a Residential property built in 1965 with 2 bedrooms, 1 bathroom and 1 parking space. The property is estimated to be valued in the range of $400,000 to $450,000.
The property last sold on 17 April 2025 for $325,000. It was sold by New Zealand Sotheby's International Realty Manawatu, (Licensed: Reaa 2008), and took 163 days to sell. On 1 September 2024, 5 Te Awe Awe Court, Hokowhitu, Palmerston North, 4410 had a Rating Valuation with a Capital Value of $420,000, Land Value of $195,000 and Improvement Value of $225,000.
| Date | Type | Price | Agent/Agency |
|---|---|---|---|
| 17 Apr 2025 | SOLD | $325,000 | |
| 6 Nov 2024 | BY NEGOTIATION | Price Not Disclosed | Michelle Van Lienen of New Zealand Sotheby's International Realty Manawatu, (Licensed: Reaa 2008) |
| 1 Jan 1930 | SOLD | $0 |
Principal Unit 5 Deposited Plan 475390
There are no similar properties in the area that are listed for sale or recently sold.