
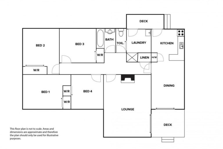
42 Churcher Street, Feilding, 4702 is a Residential property built in 1977 with 4 bedrooms, 2 bathrooms and 2 parking spaces. The property is estimated to be valued in the range of $550,000 to $600,000.
The property last sold on 10 April 2019 for $390,000. On 1 July 2025, 42 Churcher Street, Feilding, 4702 had a Rating Valuation with a Capital Value of $545,000, Land Value of $295,000 and Improvement Value of $250,000.
| Date | Type | Price | Agent/Agency |
|---|---|---|---|
| 10 Apr 2019 | SOLD | $390,000 | |
| 10 Apr 2019 | SOLD | $390,000 | |
| 22 Nov 2017 | SOLD | $318,000 | Jo Keddie of Property Brokers Ltd Feilding Licensed: Reaa 2008 |
| 22 Nov 2017 | ASKING PRICE | $319,000 | Jo Keddie of Property Brokers Ltd Feilding Licensed: Reaa 2008 |
| 4 May 2012 | SOLD | $220,000 | Joanne Steele of Property Brokers Feilding |
| 29 Mar 2012 | ASKING PRICE | $230,000 | Joanne Steele of Property Brokers Feilding |
| 25 May 2004 | SOLD | $150,000 | |
| 8 Sep 2002 | SOLD | $80,000 |
Lot 22 Deposited Plan 42913
There are no similar properties in the area that are listed for sale or recently sold.